×
Premier coup d'oeil
Photo 1
Photo 2
Photo 3
Photo 4
Photo 5
Photo 6
Photo 7
Photo 8

Maison villageoise 7.5 pièces à Saint-Pierre-de-Clage de 237 m2

Pièces7.5
Surface habitable237 m²
Prix de l'objetCHF 890'000.-
DisponibilitéImmédiatement
Messenger Dossier PDF Financement
Ajouter aux favorisSupprimer des favoris

Localisation

1955 Chamoson

Caractéristiques

Référence
PROO-0000769
Disponibilité
Immédiatement
Dernières rénovations
2024
Pièces
7.5
Nombre de niveaux du bien
4
Surface habitable
237 m²

Descriptif

Située au coeur du charmant village de Saint-Pierre-de-Clages, connu pour son patrimoine et son cadre paisible, cette maison villageoise offre un potentiel exceptionnel. Idéalement située entre Sion et Martigny, elle bénéficie d'un environnement calme tout en étant proche des commodités essentielles.

Caractéristiques principales :
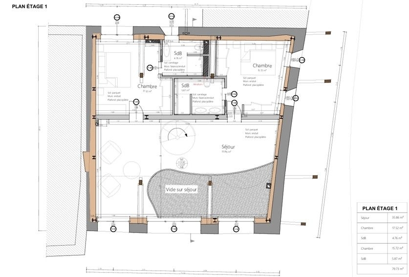
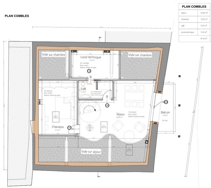
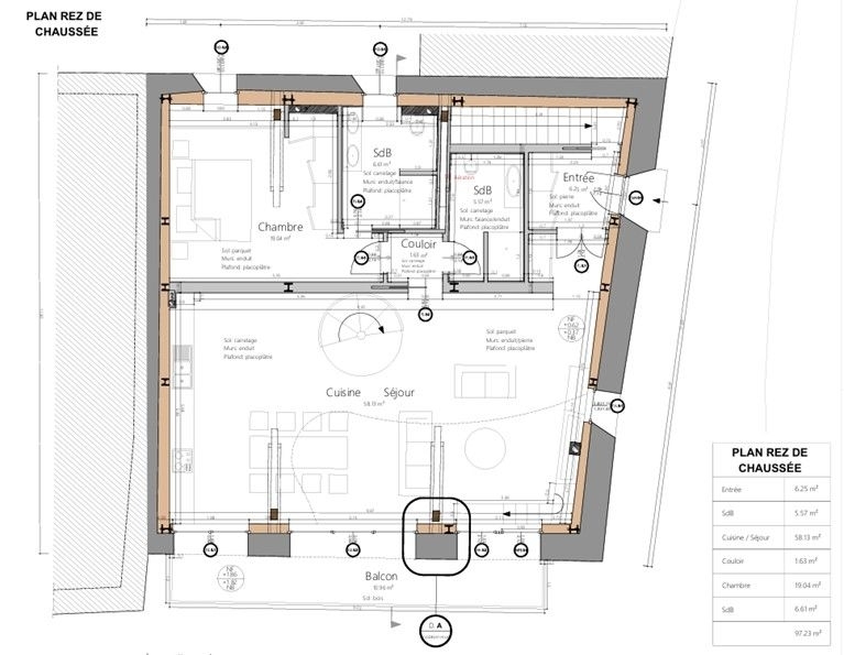
  • Surface habitable : 237 m² répartis sur trois niveaux
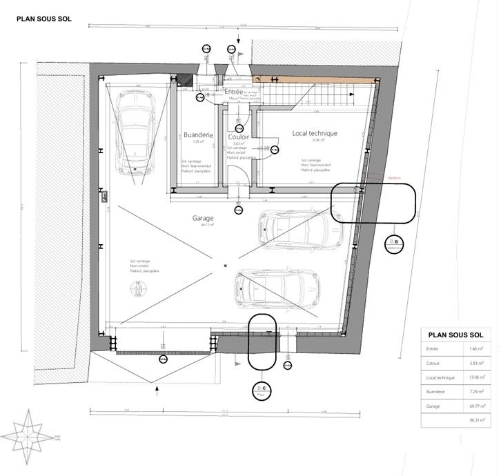
  • Sous-sol : 96 m², garage pouvant accueillir trois véhicules et locaux techniques attenants
  • Vente en résidence principale uniquement
2. Travaux réalisés

La maison est en cours de rénovation et plusieurs postes majeurs ont déjà été effectués, garantissant un bien de qualité et une bonne efficacité énergétique.

Travaux déjà réalisés :
  • Façades extérieures : rénovées, partiellement en pierres apparentes, offrant un cachet authentique
  • Toiture : entièrement refaite avec isolation optimale
  • Sols : préparés au niveau brut sur les trois niveaux
  • Portes et vitrages : partiellement changés
3. Potentiel et points forts

Cette propriété offre un excellent potentiel de personnalisation pour les futurs propriétaires. Son grand volume et son agencement permettent diverses possibilités d'aménagement, que ce soit en espace de vie familial ou en loft.

Les atouts principaux :
  • Emplacement idéal dans un village au charme typique du Valais
  • Grand garage offrant de multiples possibilités de stockage
  • Mix parfait entre l'authenticité des pierres apparentes et le confort moderne
  • Possibilité d'aménagement sur mesure selon les préférences de l'acquéreur
4. Informations complémentaires
  • Disponibilité : immédiate
  • Accès facile aux infrastructures du village (commerces, écoles, transports)
  • Opportunité rare sur le marché
Pour toute demande d'information ou visite, n'hésitez pas à nous contacter.

Détails des pièces
  • Balcon | Loggia
  • Buanderie privée
  • Cuisine
  • Séjour : 3
Chambres
  • Chambre double / parentale : 4
Salles d'eau
  • Salle de bain : 5
  • Total WC : 5


Nombre de box, garages et places de parc
Garage simple5


Environnement
  • Calme | Tranquille
  • Village
Exposition
  • Nord
Proximité
  • Commerces
  • Transports publics

A votre service pour tout renseignement complémentaire ou pour une éventuelle visite.

Du rêve... à la réalité

Commodités

Extérieur
  • Balcon(s)
  • Garage