×
Premier coup d'oeil
Photo 1
Photo 2
Photo 3
Photo 4
Photo 5
Photo 6
Plan de situation 1
Plan de situation 2
Plan de situation 3
Projet

Immeuble de trois appartements avec autorisation de construire

Surface habitable323 m²
Prix de l'objetCHF 420'000.-
DisponibilitéImmédiatement
Dossier PDF Financement
Ajouter aux favorisSupprimer des favoris

Localisation

"Salins", 1991 Salins

Caractéristiques

Référence
5079910
Disponibilité
Immédiatement
Résidence secondaire
Autorisé
Vente autorisée aux personnes à l'étranger
Non
Surface terrain
1'078 m²
Surface habitable
323 m²
Surface habitable totale
523 m²

Descriptif

Vous rêvez d'une vue à couper le souffle tout en étant à quelques minutes de Sion ? Ce projet avec autorisation de construire est fait pour vous !

Le terrain entièrement équipé et sans vis-à-vis se trouve à la fin d'une rue privée et en bordure de zone agricole, ce qui vous garantit un cadre bucolique et intimiste sans crainte de nouvelles constructions. Sion est atteignable en 10 minutes en voiture et il vous faudra 15 minutes pour rallier la piste de l'Ours.

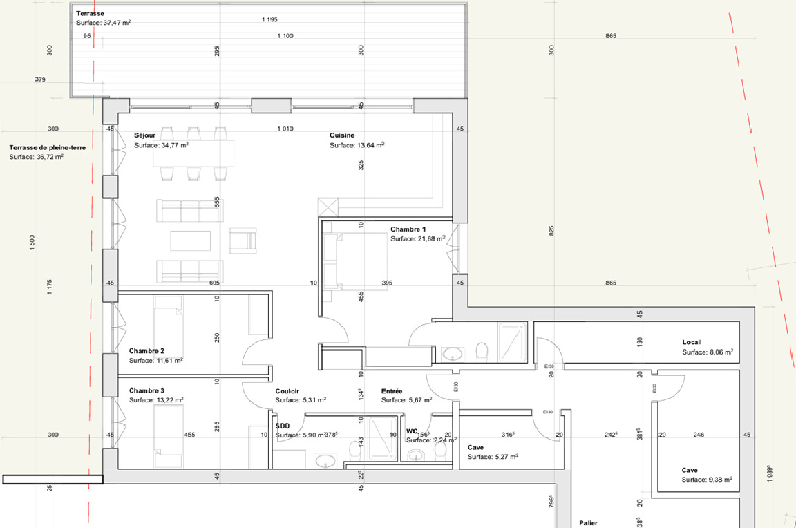
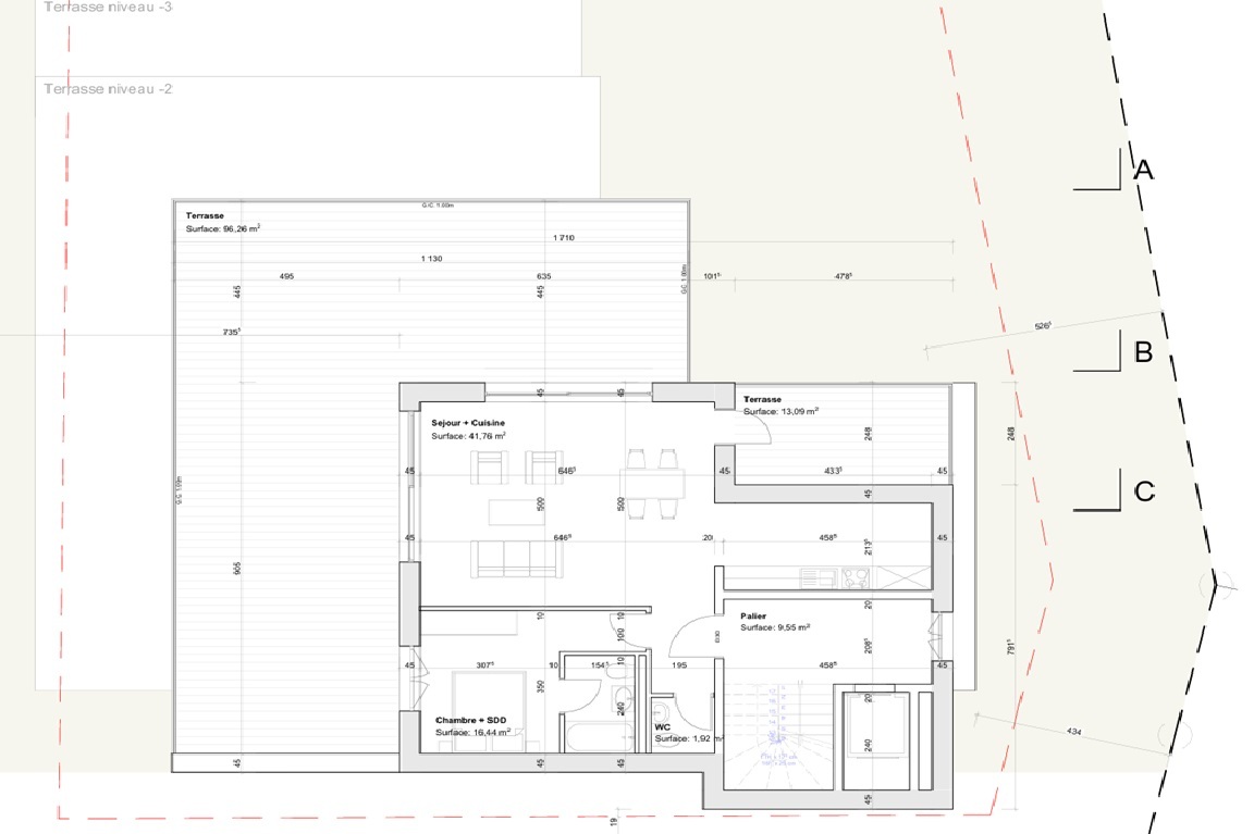
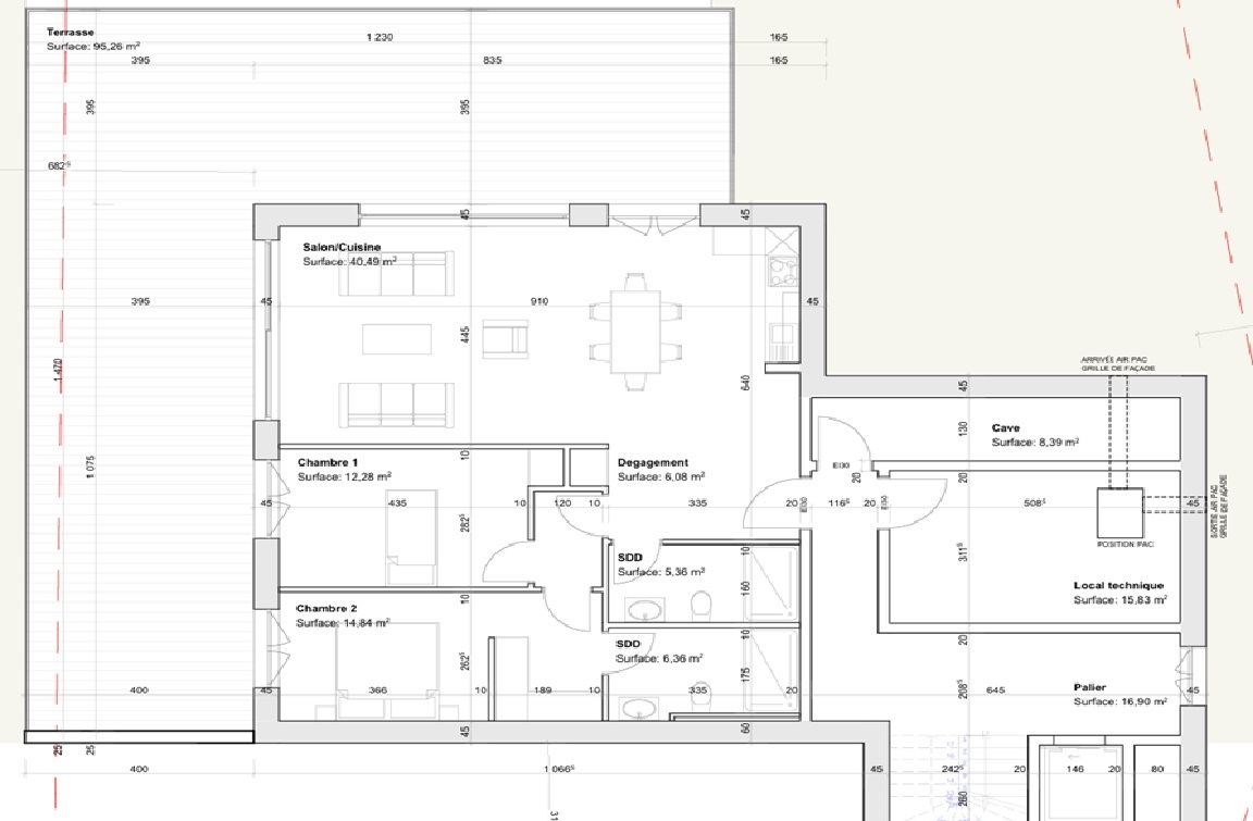
Les plans, conçus par un bureau d'architecte, proposent la construction d'un petit immeuble de trois appartements, disposés en escaliers le long de la pente pour profiter au maximum du panorama. Une imposante terrasse ceinture chaque étage, tous desservis par un ascenseur.

Détail du terrain :

  • Zone : H30 (IBUS 0.5)
  • Altitude : 700 m
  • Superficie : 1078 m2
  • Environnement calme
  • Entièrement équipé

Surface totale par étage :

  • Etage - 1 : 108 m2
  • Etage - 2 : 177 m2
  • Etage - 3 : 208 m2

Particularités :

  • 5 places de parc
  • Route privée sans issue
  • Ascenseur
  • Très grandes terrasses sans vis-à-vis
  • Possibilité d'aménager un jardin

Petit plus, mais non négligeable, une parcelle agricole attenante de 1148 m2 est incluse dans le prix globale. Cette dernière vous permettra de disposer d'un jardin, d'un verger ou même d'une aire de jeu pour les enfants. De quoi agrémenter d'une belle plus-value une terrain qui propose une vue sublime sur notre canton et sa capitale.

L'autorisation a été accordé en ce début d'année 2026. Vous souhaitez construire sans tous les tracas administratifs longs et coûteux ? N'hésitez plus !

Vous souhaitez obtenir des précisions, le dossier complet ? Contactez-moi par téléphone ou par E-mail et je vous renseignerai très volontiers. Je me tiens également à votre disposition pour une visite sur place.

Commodités

Environnement
  • Verdoyant
  • Montagnes
  • Arrêt de bus
  • Ecole maternelle
  • Ecole primaire
  • Piste de ski
  • Station de ski
  • Sentiers de randonnée
Extérieur
  • Terrasse(s)
  • Jardin
  • Verdure
  • Place(s) de parc couverte(s)
  • Construit à flanc de colline
Intérieur
  • Accès pour handicapés
  • Ascenseur
  • Double vitrage
  • Lumineux
  • Lumière naturelle
Sol
  • A choix
Exposition
  • Nord
  • Est
  • Ouest
Ensoleillement
  • Favorable
  • Toute la journée
  • En soirée
Vue
  • Dégagée
  • Imprenable
  • Sans vis-à-vis
  • Montagnes
  • Alpes
Style
  • Moderne

Distances

 
Transports publics
406 m
5'
5'
-
Ecole primaire
766 m
23'
8'
2'