Practical storage room with goods lift access
Localisation
Hardhofstrasse 15, 8424 EmbrachRent
Characteristics
Description
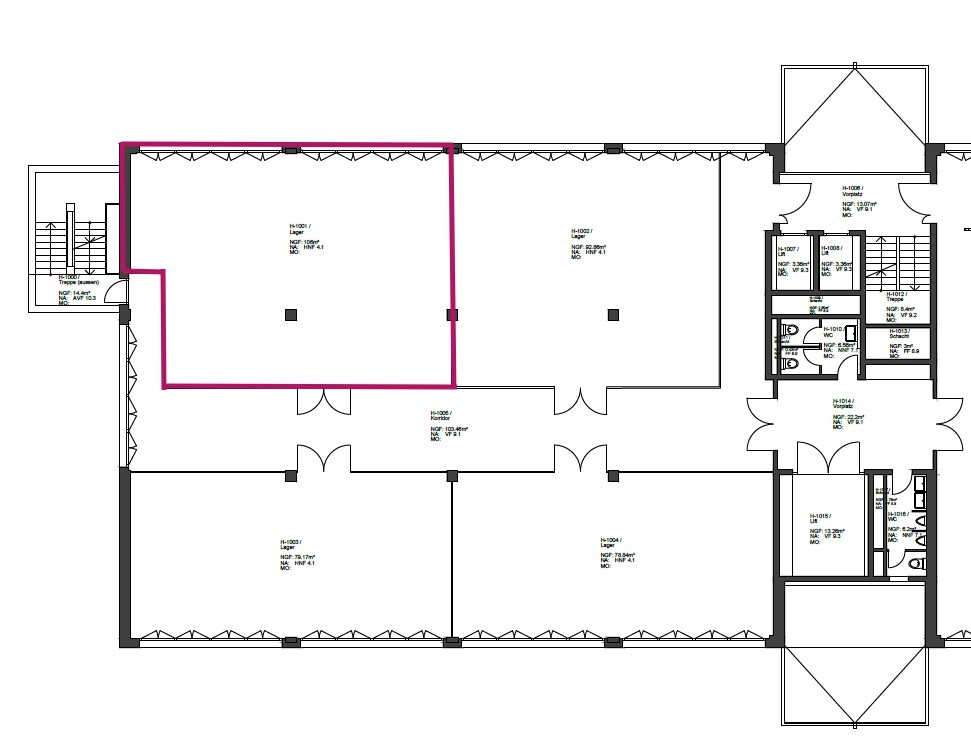
At Hardhofstrasse 15 on the 3rd floor, you will find this practical storage space, which is ideal for storing furniture, dry materials, etc.
- Ceiling height approx. 2.8m
- Separation from other rental areas by means of a grid partition wall
- Light present
- Toilets for ladies and gentlemen for shared use
- Ground load 1,000 Kg/m²
- Personal lifts as well as goods lifts with a payload of 5,000 kg
- Approach ramp with lifting platform
- Parking spaces available for rent at CHF 100.00 per month
- Shopping and dining options within walking distance
- The motorway access to the A1 towards Zurich/Bern can be reached in just 15 minutes, and Zurich Airport in about 20 minutes.
We are happy to show you this exciting area on site.
The listed impressions (visualizations and photos) are protected by copyright and may not be used by third parties. Changes are subject to reservation.





