Schönes 2-Zimmer-Apartment in den Pâquis
Ort
rue de Zürich, 1201 GenèveMiete
Angaben
Beschreibung
WWW.FORURELOC.COM
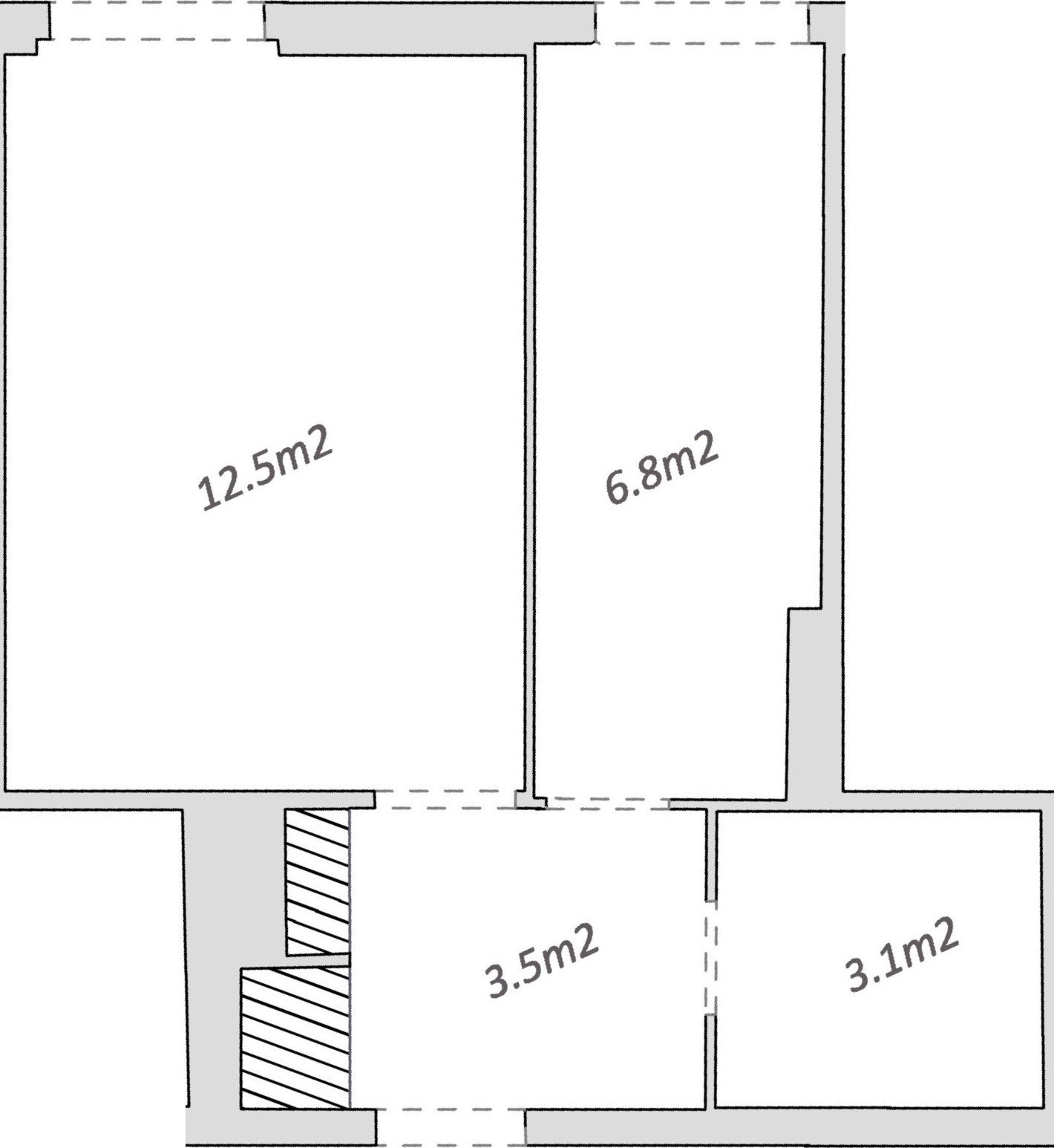
2 Zimmer, 2. Stock
• ca. 27 m²
• renoviert
• Eingang mit grosser Einbauschrankwand
• Wohnzimmer
• eingerichtete und ausgestattete Küche
• Badezimmer
• Keller
Video-Besichtigung einer ähnlichen Wohnung: https://youtu.be/KGeK8fJC9T4
Möbel können mitgenommen werden (siehe Fotos) Sichernes
Gebäude (Kamera und Zugangscard) mit 2 Lifts, grossem Veloraum und 2 Waschküchen.
Ideale Lage und in der Nähe aller Annehmlichkeiten: Bahnhof, Bus, Tram, Geschäfte, Restaurants, Bars, Apotheke, See usw.
Miete: CHF 1 600.- + 80.- (Nebenkosten)
Verfügbar ab 15. Mai 2026
Mietbedingungen
Eigenschaften
Umgebung
- Stadtzentrum
- Geschäfte
- Einkaufsmöglichkeiten
- Bank
- Post
- Restaurant(s)
- Bahnhof
- Bushaltestelle
- Tramhaltestelle
Innenbereich
- Lift
- Privates Badezimmer
- Keller
- Unmöbliert
- Einbauschrank
- Doppelverglasung
- Haustiere gestattet
Ausstattung
- Möblierte Küche
- Moderne Küche
- Kochherd
- Glaskeramik
- Backofen
- Kühlschrank
- Tiefkühler
- Gemeinschaftswaschküche
- Badewanne
- Telefon
- Kabelfernsehen
- Internetanschluss
- Gegensprechanlage
- Kamera
Boden
- Parkett
Stil
- Klassisch









