Monthey, La Kaazelle letzte 3.5 Zimmerwohnung
Ort
Ville de Monthey, 1870 MontheyAngaben
Anzahl Parkplätze
Beschreibung
Valimmobilier SA freut sich, Ihnen die Kaazelle vorzustellen – eine neue, umweltfreundliche Überbauung im Herzen von Monthey. Bei
diesem neuen Bauprojekt handelt es sich um ein kleines Gebäude mit 15 Wohnungen, das sich in unmittelbarer Nähe zum Stadtzentrum, zu Geschäften und Schulen befindet und zwischen zwei Stadtparks in einer grünen Umgebung liegt. Das neue Gebäude wird von anerkannten Bauunternehmern der Region in einer Holz-Beton-Mischbauweise errichtet. Es wird mit Fernwärme beheizt, um die Nebenkosten für die Eigentümergemeinschaft möglichst gering zu halten. Jede Wohnung verfügt über eine Loggia oder eine grosse Terrasse sowie einen Balkon.
In idealer Lage gegenüber einem öffentlichen Park bietet diese neue Wohnanlage Ihnen Ruhe und Gelassenheit sowie optimalen Sonnenschein. Die Wohnräume sind hell und sehr angenehm mit grossen Dreifachverglasungs-Fensterfronten. Das Gebäude ist für Personen mit eingeschränkter Mobilität zugänglich und bietet seinen zukünftigen Bewohnern ein höchst angenehmes Wohnumfeld.
Um das Projekt besser zu verstehen und sich in den Räumen zu orientieren, steht im Büro Valimmobilier du Chablais in Collombey ein zerlegbares 3D-Modell zur Verfügung. Es bietet eine detaillierte und realistische Visualisierung des Projekts aus verschiedenen Perspektiven und hilft dabei, die Volumen, Räume und die Atmosphäre des zukünftigen Gebäudes zu verstehen.
Die Aufteilung der Wohnung A1.1 (letzte 3.5-Zimmer-Wohnung) ist wie folgt:
- Eingangshalle von 7,7 m2 mit Einbauschränken und Platz für Waschkolonne
- Lichtdurchfluteter Wohnraum von 40,5 m2 mit offener Küche zum Wohnzimmer und Zugang zum Balkon und zur Loggia von 17 m2
- Elterliches Schlafzimmer von 13.3 m2
- Kinderzimmer von 10.0 m2
- Badezimmer von 5.3 m2
- Verteilungshalle von 2,6 m2
- 31 m2 grosser Balkon-Terrassengang
- Loggia von 17 m2 mit Schrank (Höhe max 130 cm)
Parkplatz (gegen Gebühr und obligatorisch):
- 1 x Parkplatz im Innenhof ~ CHF 37 000.- (Der Preis variiert je nach Grösse des Parkplatzes und dessen Einordnung)
Anlagen:
- Private Weinkeller
- Gemeinsamer Weinkeller
- Gemeinsamer Raum für Fahrräder und Kinderwagen
- Gemeinsamer Aussenanhang
Eigenschaften:
- Balkon und Loggia oder Terrasse
- Qualitätsausstattungen nach Wahl des Käufers (Parkett, Sanitäranlagen, Küche, weisse oder Lärchenholz-Aussenwände, ...)
- 2 Minuten vom Stadtzentrum entfernt
- Fussbodenheizung durch SATOM Thermorezo
- Waschkolonne in der Wohnung (vom Bauträger bereitgestellt)
- Aufzug und barrierefreier Zugang für Menschen mit eingeschränkter Mobilität
- In der Nähe von Geschäften, Schulen, Annehmlichkeiten und dem Gesundheitszentrum
Verkaufspreis: ab CHF 699 000
Wohnung: CHF 662 000
Parkplätze: CHF 37 000 ~ je nach Grösse
Parzellen dieser neuen Überbauung (gewichtet nach Fläche):
Gebäude A
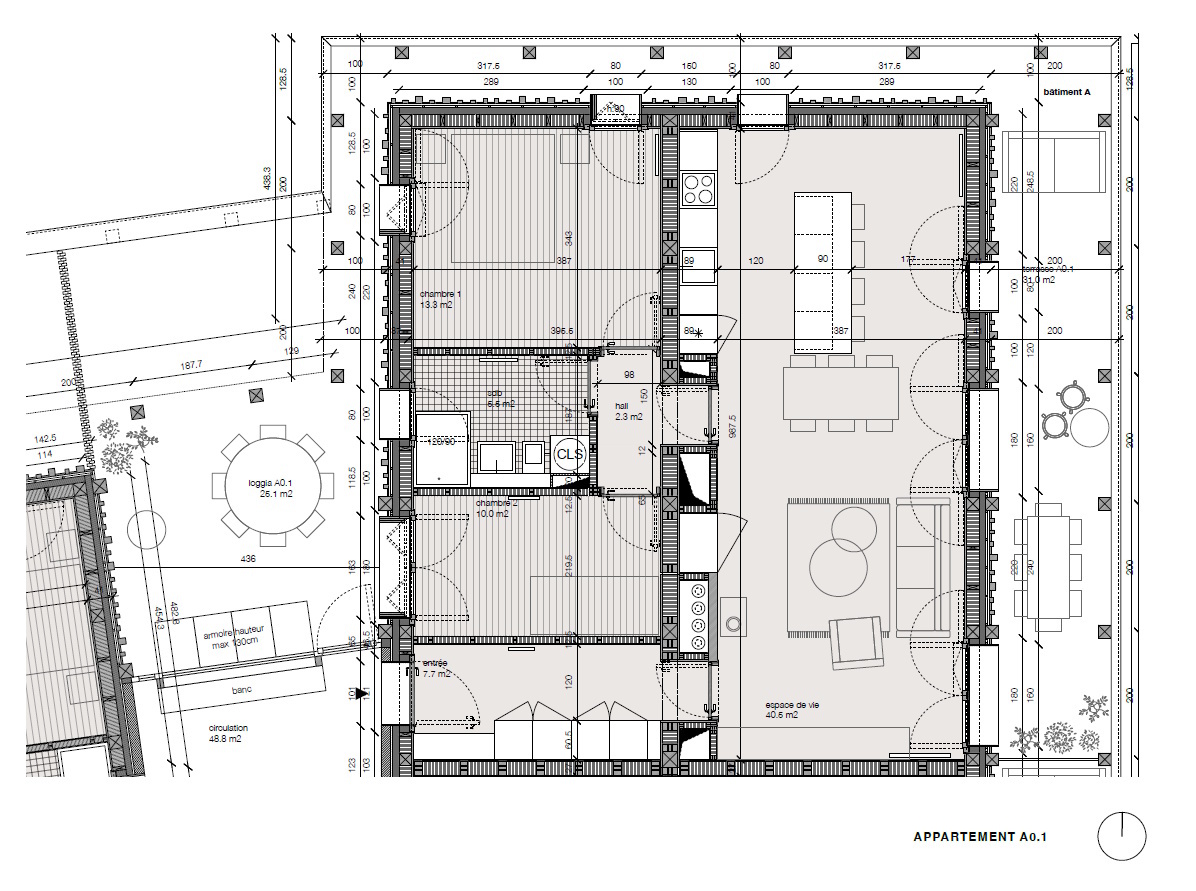
Lot 30 – appt A0.1 – EG – 3.5 Zimmer – 109.0 m2 – CHF 688 000
Lot 31 – Apt A0.2 – Erdgeschoss – 2.5 Zimmer – 76.5 m2 – Reserviert
Lot 34 – Apt A1.1 – 1.Stock – 3.5 Zimmer – 105.7 m2 – CHF 662 000
Lot 35 – Apt A1.2- 1. Stock – 2.5 Zimmer – 75.0 m2 – Reserviert
Lot 38 – Apt A2.1 – 2.Stock – 3.5 Zimmer – 105.7 m2 – Reserviert
Lot 39 – Apt A2.2 – 2.Stock – 2.5 Zimmer – 75.0 m2 – Reserviert
Lot 42 – Apt A3 – 3.Stock – 5.5 Zimmer – 206.7 m2 – CHF 1 293 000
Lot 44 – Apt A4 – 4.Stock – 5.5 Zimmer – 239.3 m2 – Reserviert
Gebäude B
Lot 32 – Wohnung B0 – Obergeschoss – 4.5 Zimmer – 158.1 m2 – CHF 998 000
Lot 36 – Wohnung B1 -1. Stock – 4.5 Zimmer – 154.5 m2 – CHF 966 000
Lot 40 – Wohnung B2 – 2.Stock – 4.5 Zimmer – 154.5 m2 – Reserviert
Lot 43 – Wohnung B3 – 3.Stock – 4.5 Zimmer – 154.5 m2 – Reserviert
Gebäude C
Lot 33 – Wohnung C0 – Obergeschoss – 3.5 Zimmer – 132.1 m2 – Reserviert
Lot 37 – Wohnung C1 – 1.Stock – 3.5 Zimmer – 119.4 m2 – Reserviert
Lot 41 – Wohnung C2 – 2.Stock – 3.5 Zimmer – 119.4 m2 – Reserviert
Kurzbeschreibung des Projekts:
Das Projekt zielt darauf ab, den CO2-Fussabdruck der Gebäude zu reduzieren und den Energieverbrauch der zukünftigen Bewohner zu senken. Daher wurden hauptsächlich Materialien aus pflanzlichen, biologischen oder zu 100% recycelbaren Ressourcen ausgewählt, die den neuesten Isolationsstandards entsprechen. Auf dem Dach des Gebäudes A werden Photovoltaik-Solarmodule installiert und eine riesige, unterirdische Zisterne wird das Regenwasser auffangen, das zur Bewässerung der Zierpflanzen und Gärten verwendet wird. Die Holzrahmenfassaden werden belüftet, die Isolation wird eingeblasen und die Verkleidung besteht aus Massivholzplatten. Die Balkone sind aus vorgefertigtem Beton mit Pfosten und Geländern aus Lärchenholz/Naturholz.
Der Boden der Wohnräume besteht aus einer geschliffenen Betonplatte, die die Wärme tagsüber speichert und sie am Abend wieder abgibt. Die Konstruktion entspricht allen gängigen Bauvorschriften für gemischte Holz-/Betongebäude (Wärme-, Akustik-, Struktur- und Erdbebenschutzvorschriften, Brandschutzvorschriften, Vorschriften für den Zugang für Menschen mit eingeschränkter Mobilität usw.)
Das Projekt besteht aus einem Betonfundament, das einen halb unterirdischen Parkplatz beherbergt und auf dem ein zentraler Verteilerkern ruht, der drei separate Gebäudeteile verbindet. Die Idee ist, die Gesamtvolumetrie des Gebäudes in Bezug auf den gegenüberliegenden Park zu gestalten. Das Gebäude bietet eine Absenkung um eine Etage im Westen und um zwei Etagen im Süden.
Diese unterschiedlichen Höhen ermöglichen Terrassen auf den Dächern, die für die Wohnungen auf derselben Etage zugänglich sind. Jeder Gebäudeteil hat mindestens drei Fassaden, um die Standortbedingungen optimal zu nutzen.
Im Untergeschoss bietet die Breite der Parkplätze auf jedem Stellplatz Platz für zwei zusätzliche Veloständer. Jedes Parkplatz-Stellangebot ist bereits für einen individuellen Ladestromanschluss vorbereitet (Rohrleitung und benötigte Leistung sind bereits vorgesehen, aber die Stromversorgung und die Steckdosen sind nicht inbegriffen). Die Parkplätze kosten zwischen CHF 36 500 und 38 000, je nach Grösse des Parkplatzes und der Aufbewahrungsmöglichkeit.
***
Die Gemeinde Monthey und der Kanton Wallis sind für ihre zahlreichen sozialen Vorteile und ihre geringen Steuern bekannt (Krankenkasse, Fahrzeugsteuer, Kapitalleistung und andere Steuern). Diese Gemeinde bietet viele Vorteile für Familien. Die Wohnung befindet sich in einer angenehmen Umgebung, 2 Minuten von den Schulen und Geschäften und weniger als 10 Minuten von der Autobahnausfahrt St-Triphon oder Bex entfernt.
Sie möchten mehr erfahren, die Skizze sehen? Kontaktieren Sie mich per Telefon, E-Mail oder besuchen Sie uns (Terminvereinbarung)
Eigenschaften
Umgebung
- Stadtzentrum
- Ländlich
- Park
- Geschäfte
- Einkaufsmöglichkeiten
- Bank
- Post
- Restaurant(s)
- Apotheke
- Bahnhof
- Bushaltestelle
- Tramhaltestelle
- Autobahnanschluss
- Kinderfreundlich
- Spielplatz
- Kinderkrippe
- Kindergarten
- Primarschule
- Sekundarschule
- Kantonsschule/Gymnasium
- Sportzentrum
- Manege
- Freibad
- Tennis Zentrum
- Hallenbad
- Radweg
- Fussballplatz
- Eislaufbahn
- Kino
- Veranstaltungsort
- Krankenhaus / Klinik
- Pflegeheim
- Arzt
Aussenbereich
- Balkon(e)
- Garten im Stockwerkeigentum
- Ruhige Lage
- Loggia
- Mit Gartenhaus
- Öffentlicher Parkplatz
- Besucherparkplätze
Innenbereich
- Behindertengerecht
- Lift
- Tiefgarage
- Offene Küche
- Keller
- Weinkeller
- Fahrradraum
- Einbauschrank
- Kaminanschluss für Schwedenofen
- Dreifachverglasung
- Hell
Ausstattung
- Möblierte Küche
- Waschmaschine
- Wäschetrockner
- Private Waschküche
- Anschlüsse für Wasch-Trocken-Säule
- Badewanne
- Photovoltaik-Paneele
- Glasfaser
- Elektroauto-Ladestation
- Gegensprechanlage
Boden
- Parkett
- Gussboden
Zustand
- Neu
- Zum Erbauen
Ausrichtung
- Osten














